
Zamki, dwory obronne, mury miejskie, grodziska
Forum miłośników średniowiecznych fortyfikacji (zał. 05 Lis 2007)
kalos70 Wysłany: 27 Gru 2015 20:23
100 zabytków odkrytych podczas badań na Kępie Dominikańskiej można oglądać w nowym oddziale Muzeum Archeologicznego w Gdańsku – Piwnicy Romańskiej przy ul. Pl. Dominikański 1. Jednak największą atrakcją jest niewątpliwie sam obiekt i jego dzieje.
Piwnicę odkryli w 2005 roku pracownicy Muzeum Archeologiczne w Gdańsku. Jest ona najstarszym murowanym obiektem zachowanym w tym mieście, a jej historia sięga drugiej połowy XIII wieku. Szczegółowe badania ujawniły tajemniczą przeszłość budowli. Zachowany w doskonałym stanie obiekt okazał się refektarzem klasztoru dominikanów. Owocem przeprowadzonych prac jest też odnalezienie pozostałości kuchni, a w niej dużego, ceglanego pieca.
– Na wyjątkowość Piwnicy Romańskiej składa się kilka czynników – objaśnia w komunikacie prasowym Maciej Szyszka z Muzeum Archeologicznego w Gdańsku.
– Po pierwsze jest to najstarsze wnętrze kubaturowe na terenie dawnego Gdańska, jest to bowiem jedyny do tej pory zachowany budynek, który przetrwał „rzeź Gdańska”. Po drugie zastosowano tu unikatowy na skalę Polski system sklepień. Są to cztery pola sklepień eliptycznych wspartych na pendentywach i na filarze centralnym. Co więcej obiekt zachował się w takim stanie, że można było zrewaloryzować budowlę do wyglądu jaki prawdopodobnie miała w XIII wieku, w czasach swojej świetności. W latach późniejszych piwnica była przemurowywana, a cała struktura była nieczytelna – tłumaczy archeolog.
Najstarsze wnętrza Gdańska mają 54 metry kwadratowe, a ich efektowne sklepienie znajduje się na wysokości 3,5 m. Budynek usytuowany był na niskim paterze, około 1 metr zagłębiony w ziemi. Pomieszczenia najprawdopodobniej przestały być użytkowane po spaleniu miasta przez Krzyżaków w 1308 roku.
Na wystawie zorganizowanej przez Muzeum Archeologiczne w Gdańsku można zobaczyć przeszło 100 zabytków odkrytych podczas badań wykopaliskowych na Kępie Dominikańskiej. Są to nie tylko przedmioty codziennego użytku związane z życiem klasztoru. Prezentowane są również dewocjonalia z cmentarzyska, które odkryto podczas prac archeologicznych na tym terenie. Na szczególną uwagę zasługuje ossuarium (składowisko ludzkich szczątków) datowane na początek XVII wieku.
Niewielki ceglany obiekt, zaadaptowany na mini muzeum ma przenieść gości w czasy wczesnego średniowiecza. Główną atrakcją jest eliptyczne sklepienie piwnicy wsparte na centralnym filarze. Eksponowanie detali architektonicznych odbywa się za pomocą spektaklu światło i dźwięk. Pokaz i zwiedzanie uzupełnia narracja wirtualnego przewodnika. Dodatkowo w piwnicy prezentowany jest dziesięciominutowy film z animacjami 3D ukazujący wygląd Kępy Dominikańskiej w okresie osadnictwa. Film rekonstruuje wygląd kościoła oraz klasztoru na tle XIII-wiecznej panoramy Gdańska.
By przystosować romańskie pomieszczenia dla zwiedzających konieczne było przeprowadzenie wieloetapowych prac remontowo-konserwatorskich. Prace przy zabytkowych piwnicach sfinansowały miasto Gdańsk, Urząd Marszałkowski Województwa Pomorskiego, Ministerstwo Kultury i Dziedzictwa Narodowego oraz Muzeum Archeologiczne w Gdańsku.
Więcej informacji o Piwnicy Romańskiej, w tym godziny zwiedzania, na stronie internetowej www.piwnicaromanska.org.
http://archeowiesci.pl/2015/01/04/mozna-juz-zwiedzac-romanska-piwnice-w-gdansku/
Fot. Lidia Nadolska, Muzeum Archeologiczne w Gdańsku

Marcin600 Wysłany: 05 Cze 2021 16:18
Pomieszczenie zwane obecnie Piwnicą Romańską jest interpretowane przez gdańskich archeologów, odkrywców i badaczy obiektu (Maciej Szyszka, Muzeum Archeologiczne w Gdańsku), jako refektarz (jadalnia klasztorna) i datowane na trzecią ćwierć XIII w., czyli lata 1250-1275:
„Budynek wzniesiono prawdopodobnie w 3 ćwierci XIII wieku. Analiza pobranych próbek zapraw wskazuje wiek użytego do wypalenia wapna drewna na wiek 1230–1260” (Szyszka M. 2009).
Taka interpretacja i datowanie budzi jednak pewne kontrowersje wśród części badaczy, którzy uważają, że było to cellarium (półpiwniczne, klasztorne pomieszczenie prawdopodobnie magazynowe) i datują je na czwartą ćwierć XIII w., czyli lata 1275-1300 (Bojęś-Białasik A., Niemiec D. 2016 i cytowana tam literatura).
Jestem amatorem, ale również wydaje mi się nieco dziwne umieszczenie tak ważnego w klasztorze pomieszczenia, jak wspólna jadalnia, w słabo oświetlonej przez 1 lub kilka lufcików piwnicy (być może przesłanką były tu pozostałości pieca, który wstawiono w 2 fazie użytkowania wnętrza). Również architektura Piwnicy Romańskiej jest wg mnie bardziej wczesnogotycka, niż romańska (obecny półkolisty portalik północno-wschodni jest współczesną rekonstrukcją), a w najlepszym razie „przejściowa” (późnoromańsko-wczesnogotycka), co przemawiałoby za późniejszym datowaniem obiektu.
Ze względu na unikalne rozwiązanie sklepień eliptycznych, dobry stan zachowania i szerokie udostępnienie zwiedzającym jest to wyjątkowy obiekt, godny odwiedzenia i popularyzacji. Jest też jedynym zachowanym wnętrzem gdańskim sprzed zniszczenia miasta przez Krzyżaków w 1308 r. (tzw. „rzezi gdańskiej”).
Poniżej podaję cytaty z pracy Macieja Szyszki:
Szyszka M. 2009. Romański kościół pw. św. Mikołaja i trzynastowieczny zespół podominikański w świetle badań archeologicznych na stan. 5 w Gdańsku. [w:] Janiak T. (red.) Architektura romańska w Polsce. Nowe odkrycia i interpretacje. MPPP, Gniezno.
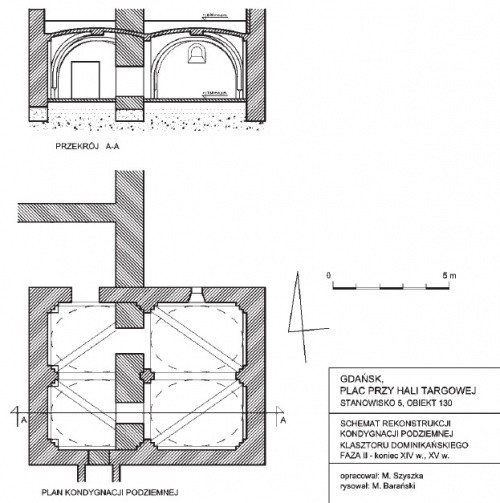
„Od strony południowej pierwotne założenie ograniczał budynek z zachowaną okazałą kondygnacją podziemną, usytuowany równolegle do osi trzynastowiecznego kościoła...
Kondygnacja podziemna była salą z czterema polami sklepień eliptycznych, wspartych na pendentywach z centralnym filarem krzyżowym...
Nadziemna partia podpiwniczonego budynku uległa destrukcji, prawdopodobnie w 1308 roku, natomiast kondygnacja podziemna, mimo wielu przebudów i zniszczenia, zachowała się w dobrym stanie do ok. 4/5 pierwotnej kubatury. Wartość historyczną obiektu, oprócz 750-letniej metryki i znacznego stopnia zachowania, dodatkowo podnosi zastosowanie unikatowych na ziemiach polskich rozwiązań architektonicznych. Kondygnacja podziemna o powierzchni ok. 52 m2, wysokości 3,20 m, z centralnie zlokalizowanym filarem, przykryta była czterema polami sklepień eliptycznych, wspartych na pendentywach (żagielkach). Była ona zagłębiona ok. 1,4 m w gruncie i posadowiona bezpośrednio na pospółce. Mur zachodniej części piwnicy wzniesiono w oparciu o kamienny cokół, wykonany z ciosów granitowych wysokości ok. 40 cm, spojonych zaprawą wapienno-piaskową. Z tego samego materiału zostały wykonane prostopadłościenne bazy filarów przyściennych od strony zachodniej. W przypadku wschodniej części nie zastosowano kamiennej podmurówki, została ona wzniesiona z cegieł bez użycia materiału kamiennego. Konstrukcja ścian i przesklepienia oparta była o osiem glifionych filarów przyściennych i jeden krzyżowy filar centralny. Wzdłuż ścian pomiędzy filarami rozpięte były arkady; zostały one wypełnione materiałem ceglanym tworząc blendy. W przypadku dłuższych ścian były one o wykroju pełnego łuku, a ścian krótszych — ostrołukowe. Pełnymi i ostrymi łukami, w zależności od ich rozpiętości przeniesiono obciążenie ścian na filar centralny; tak powstałe gurty miały szerokość i wysokość jednej cegły. Filary przyścienne wieńczyły ceglane, trapezowate konsole. W całości wraz z detalem zachowała się konstrukcja filara południowego. Nad konsolami w wątku wozówkowym wzniesione zostały pendentywy, stanowiące oparcie dla czaszy sklepienia. W ten sposób powstały cztery pola sklepień, oddzielone od siebie gurtami. Wypełnienia pól sklepień, w odróżnieniu od pendentywów, wzniesione zostały z cegieł w wątku główkowym, co pozwalało klinować konstrukcję. Po przekątnej każdego z czterech pól sklepień poprowadzono gurty o grubości dwóch cegieł spływające do filarów przyściennych, znajdujących się na środku ścian. Gurty nie przecinały się. Dawało to romboidalną sieć pasów o grubości dwóch cegieł z arkadami, oddzielającymi poszczególne sekcje sklepień, przebiegających po przekątnych figury. Ze względów konstrukcyjnych poprzeczne gurty miały znikome znaczenie, były u podstawy przewiązane do wysokości pięciu cegieł a na dalszym przebiegu doklejono je jedynie do wysklepki. Pierwotne wejście do piwnicy wraz z szyją prowadzącą do wnętrza znajdowało się w ścianie południowej po zachodniej jej stronie. W ścianie północnej, we wschodniej jej części, umiejscowiono glifione okno, umożliwiające wentylację pomieszczenia. Powstałe pachy sklepień dociążono zamurowując je połówkami cegieł spojonych zaprawą wapienno-piaskową. Posadzkę stanowiła warstwa utwardzonego wapna grubości 4–5 cm...
Mimo dwukrotnej przebudowy zachowały się czytelne części sklepień (pendentywy, fragmenty wypełnień pól sklepień) a także detal architektoniczny, zarówno ceglany: uskokowo kształtowane filary przyścienne, filar centralny, blendy o wykroju ostrego i pełnego łuku, konsole (wsporniki), ostrołukowo wysklepione gurty, glifione okno wentylacyjne, podstawa pieca, pierwotna szyja do piwnicy usytuowana od strony południowej; jak również detal kamieniarski: bazy wielobocznych filarów, cokół wykonany z odkutych z dużą starannością ciosów granitowych...
Jeszcze w pierwszym okresie użytkowania oblicowano filar centralny celem wzmocnienia a także wzniesiono podstawę pieca przy ścianie wschodniej.
Pierwsza poważna przebudowa obiektu miała miejsce w XV wieku. W trakcie budowy zachodniego krużganka wzniesiono na osi północno-południowej poprzeczną ścianę, dzielącą jednorodną dotychczas przestrzeń piwnicy na dwie części. Przekuto ścianę północną celem dodania szyi piwnicy od strony północnej, natomiast wyjście południowe zostało zamurowane. We wnętrzu piwnicy o 0,5 m podniesiono poziom użytkowy, zakładając nową posadzkę ceglaną.
Następna przebudowa nastąpiła w okresie nowożytnym w XVIII wieku, i dotyczyła głównie przemurowań części wschodniej obiektu. Wydzielono wówczas niewielkie pomieszczenie w północno-wschodniej części piwnicy, z zamiarem doprowadzenia do niego schodów od strony wirydarza. W tym celu przekuto ścianę wschodnią, jednocześnie naruszając stabilność pendentywów, przez co musiały zostać one podmurowane. Prawdopodobnie podczas tej przebudowy zdemontowano pasy podtrzymujące sklepienie i dodano filar wspierający klucz sklepienia eliptycznego przy południowo-wschodniej części. Piwnica uległa zniszczeniu wraz z całym klasztorem w 1813 roku.
Obecnie relikty są tymczasowo zabezpieczone... Ich stan zachowania umożliwia uzupełnienie brakujących wysklepek, również stan ścian nośnych jest zadowalający, pozwalający na podjęcie próby odbudowy podziemnej kondygnacji obiektu...”
Obiekt jest dostepny do zwiedzania od początku 2015 r.
Dodatkowo podaję cytat z pracy Anny Bojęś-Białasik i Dariusza Niemca, którzy m.in. omawiają przykłady późnoromańskich cellariów w klasztorach w Mogile, Trzebnicy, Lubiążu, Kołbaczu, Sieradzu, Krakowie, Sandomierzu i Gdańsku:
Anna Bojęś-Białasik, Dariusz Niemiec 2016. Opactwa w Lubiążu, Trzebnicy i Mogile a początki cysterskiej architektury ceglanej na Śląsku i w Małopolsce w kontekście filiacyjnych zależności warsztatowych
[w:] Janiak T., Stryniak D. 2016. Architektura sakralna w początkach państwa polskiego (X-XIII wiek). MPPP, Gniezno.
„Analizując przykłady XIII-wiecznych dwunawowych, w pełni sklepionych wnętrz o charakterze suterenowym (...) zauważyć można, że było to rozwiązanie uniwersalne stosowane w wielu klasztorach niezależnie od obowiązującej reguły klasztornej. Powszechność stosowania takiego układu przestrzennego — zarówno w architekturze polskiej, jak i europejskiej — wynikała z optymalnej, jak na owe czasy kompilacji kilku parametrów. Dwunawowe sklepione pomieszczenie gwarantowało: stabilną i solidną strukturę pod względem budowlanym, w której dla osiągnięcia tych wartości aplikowano sprawdzone, ale i jedyne możliwe ówcześnie rozwiązanie konstrukcyjne; optymalne wykorzystanie struktury przestrzennej całego segmentu zabudowy poprzez częściowe pogrążenie cellarium poniżej poziomu terenu oraz obszerną powierzchnię i kubaturę, co w przypadku funkcji magazynowej wnętrza miało praktyczny wymiar użytkowy. Częściowe zagłębienie cellarium w terenie oznaczało oszczędność miejsca, którego wciąż było wystarczająco dużo dla wzniesienia wyższych kondygnacji, a lekkie wyniesienie ponad teren pozwalało na naturalną wentylację i doświetlenie wnętrza piwnicy...
Zredukowaną formą tego typu konstrukcji są pomieszczenia o jednej podporze środkowej (w zasadzie wnętrza centralne), w różnych edycjach funkcjonalnych i o zróżnicowanym detalu...
Innym ważnym konstrukcyjnym odniesieniem jest cellarium z pojedynczą podporą pod refektarzem we wschodnim skrzydle klasztoru dominikanów w Sandomierzu z połowy XIII wieku (...) czy znacznie późniejsze (czwarta ćwierć XIII wieku?) cellarium z pojedynczą podporą klasztoru dominikanów w Gdańsku (Szyszka 2009: 630–633, ryc. 14, 16–17; Paner 2014: 452, ryc. 2, 4, 6–7; Herrmann 2015: 191–192, ryc. 284–285) udostępnione ostatnio szerokiej publiczności po zakończonych pracach konserwatorskich i interpretowane jako dawny refektarz. Abstrahując od interpretacji funkcji i chronologii, które mogą budzić uzasadnione wątpliwości (por. Herrmann 2015: 191), układ przestrzenny wnętrza podąża tą samą ideą konstrukcji, wspartej na podporze centralnej, której jednak nie nadano indywidualnej autonomicznej formy architektonicznej. Filar gdański jest dosyć wątły (w odróżnieniu od masywnych i solidnych filarów w pozostałych klasztorach), a jego kształt jest po prostu konsekwencją kontynuacji spływów gurtów międzyprzęsłowych, aż do poziomu posadzki. Odmienny jest także system sklepień, który w cellarium gdańskim tworzą cztery sekcje rzadko spotykanego sklepienia eliptycznego wspartego na pendentywach.
Literatura:
Herrmann C. 2015 Bettelorden, [w:] Mittelalterliche Architektur in Polen. Romanische und gotische Baukunst zwischen Oder und Weichsel, t. 1, red. C. Herrmann, D. von Winterfeld, Petersberg, s. 185–267.
Paner H. 2014 Medieval Monasteries in Gdańsk, [w:] Lubecker Kolloquium zur Stadtarchaologie im Hanseraum
IX. Die Kloster, red. M. Gläser, M. Schneider, Lübeck, s. 449–460.
-----------------------------
Rysunki i zdjęcie z pracy:
Szyszka M. 2009. Romański kościół pw. św. Mikołaja i trzynastowieczny zespół podominikański w świetle badań archeologicznych na stan. 5 w Gdańsku. [w:] Janiak T. (red.) Architektura romańska w Polsce. Nowe odkrycia i interpretacje. MPPP, Gniezno.
Położenie "Piwnicy Romańskiej" w ciągu skrzydła XIII-wiecznego klasztoru dominikańskiego na południe od romańskiego kościoła św. Mikołaja (jego relikty są wyeksponowane w Hali Targowej)






Marcin600 Wysłany: 05 Cze 2021 17:27
Zdjęcia z mojej wizyty w "Piwnicy Romańskiej" (czyli refektarzu lub cellarium klasztoru dominikanów z 2 połowy XIII w) w maju 2021 r.
Wejście do obiektu znajduje się w zielonym pawilonie pomiędzy gotyckim kościołem św. Mikołaja (dominikańskim) a Halą Targową. Wychodzi się sąsiednim pawilonem. Zwiedzanie w grupkach z przewodnikiem co pół godziny, połączone z projekcją filmu. Wystawa obiektów znalezionych podczas wykopalisk, ossuarium (raczej makabryczne nagromadzenie kości ludzkich) i inne atrakcje. Całość "ożywia" zmienne, kolorowe oświetlenie (powstrzymam się od skomentowania tego aspektu). Czynne od wtorku do niedzieli od 10.00 do 17.00 (maj 2021).
https://archeologia.pl/archeologia_oddzialy/piwnica-romanska/
Oryginalne wejście do pomieszczenia (w zachodniej części ściany południowej) od zewnątrz. Po lewej widoczny mały fragment muru szyi wejściowej.

Widok z rogu NW w kierunku SE. Po prawej oryginalne wejście. Po jego lewej stronie na posadzce pozostawiony fragment wtórnej ściany działowej (XV w.). Widać też oryginalny fragment ukośnej gurty podpierającej sklepienie eliptyczne. Sklepienie uzupełniane.

Widok z rogu NW w kierunku SE. Na sklepieniu widoczna zmiana wątku cegieł między pendentywem (żagielkiem) - układ wozówkowy, a czaszą sklepienia eliptycznego - układ główkowy.

Widok od wejścia w narożniku SW w kierunku NE.

Przęsło zachodnie. W głębi ściana północna - arkada zachodnia. Widoczny cokół z ciosów kamiennych.

Ściana północna - arkada wschodnia z oryginalnym okienkiem piwnicznym.

Ściana wschodnia - arkada północna. Wtórne wejście ze zrekonstruowanym portalikiem.

Ściana wschodnia - arkada południowa. Widoczne pozostałości pieca wbudowanego w 2 fazie użytkowania wnetrza

Ściana południowa - arkada wschodnia.

Ściana południowa - arkada zachodnia. Oryginalne wejście do cellarium. Po lewej pozostawiony fragment wtórnej ściany działowej

Ściana zachodnia - arkada południowa. Widać cokół z ciosów kamiennych.

Ściana zachodnia - arkada północna. Widać cokół z ciosów kamiennych

Filar środkowy, bez wyodrębnionej głowicy, na kamiennym cokole.

Oryginalny półfilar południowy od strony wschodniej. Widać profilowaną w cegle "głowicę" półfilara.

Półfilar południowy od strony zachodniej i spływająca na niego gurta sklepienia. Oryginalne. Po prawej pozostałości wtórnej ściany podziałowej.

Półfilar północny. Widoczna części oryginalnej gurty "doklejonej" od spodu (nie powiązanej konstrukcyjnie) do sklepienia eliptycznego

Sklepienie eliptyczne (unikalne) - pole NW. Widoczne części oryginalne, uzupełniane.

Sklepienie eliptyczne (unikalne) - pole SW. Widoczne części oryginalne, uzupełniane.

Oryginalne okno - ściana północna - pole wschodnie

Płyta nagrobna z reliefem krzyża - XIII w. Wystawa w podziemiach

Od 10 lat na tym Portalu jest wątek romańskiej piwnicy w Gdańsku:
Założył go Użytkownik kalos70
3 lata temu Użytkownik Marcin600 założył temat dawnego opactwa cysterskiego w Oliwie
Już na początku wskazał na konieczność promocji śladów architektury romańskiej w Gdańsku, Grudziądzu. Do tego dodam jeszcze kruchtę romańską w Kwidzynie:
http://kwidzynopedia.pl/index.php/Katedra_w_Kwidzynie
https://fotopolska.eu/Kwidzyn/b55805,Kruchta.html
Wg stanu z 27 lipca 2025 r. Kwidzyna nie ma w wykazie zabytków romańskich województwa pomorskiego na Forum:
https://zamkidwory.forumoteka.pl/forum/architektura-romanska-polska-pomorskie/
Linki do romańskiej piwnicy w Gdańsku:
https://kartaturysty.visitgdansk.com/gdansk-partner-szczegoly.qbpage?id=9815
https://archeologia.pl/archeologia_oddzialy/piwnica-romanska/
https://pomorskie.travel/punkty-poi/piwnica-romanska/
https://jestemzgdanska.pl/n-partner-szczegoly.qbpage?id=135153
https://www.facebook.com/piwnicaromanska/?locale=pl_PL
https://archeologia.pl/aktualnosci/piwnica-aktualnosci/
https://pl.wikipedia.org/wiki/Refektarz_klasztoru_dominikan%C3%B3w_w_Gda%C5%84sku
https://www.kroplamorza.pl/piwnica-romanska-w-gdansku-krople-gdanska-cz-9/
https://www.trojmiasto.pl/Piwnica-Romanska-o57813.html
W następnych tematach Marcin600 wskazał na detale architektoniczne.
Te poczynania skłoniły mnie do zespolenia promocji architektury romańskiej w Grudziądzu, poprzez „podklejenie się pod Gdańsk”. W Gdańsku zabytki romańskie promuje Muzeum Archeologiczne. Mostami średniowiecznymi w Grudziądzu kilkanaście lat temu zainteresowała się Politechnika Gdańska .
Fontanną na Rybnym Rynku zainteresowała się strona internetowa Gdańska
https://www.gdanskstrefa.com/studnia-rybnego-rynku/
W Grudziądzu przez dziesięciolecia nie zdawano sobie sprawy z wybitnej wartości artystycznej tego obiektu.
Wskazywanie przez Marcina600 usprawiedliwia pokazania w Grudziądzu jeszcze czegoś niezwykłego.
W dawnej stajni kościelnej przy ul. Kościelnej 10 jest ceglany mur w wątku przypominającym allonge appareil.
W takim wątku zbudowano rotundę Adaukta i Feliksa na Wawelu. W przypadku Grudziądza nie pochodzi on zapewne z tak odległych czasów, ale 2 połowa XII w. jest realna. Natomiast krypta pod plebanią, budynkiem nieprzerwanie użytkowanym od czasów średniowieczna, z uwagi na wzór sklepienia w jodełkę jest chronologicznie starsza od piwnicy romańskiej w Gdańsku. Maja jednak wspólny mianownik, są w podobnym miejscu, jeżeli chodzi o rozplanowanie klasztorów.
Dla szybszego rozpoznania tematu jeszcze raz mój artykuł o wiązaniach murów w Grudziądzu napisany 10 lat temu:
https://kpbc.umk.pl/dlibra/publication/222281/edition/220907/content
Dla przypomnienia informacje o krypcie dwunawowej pod plebania w postach od 20 czerwca 2025 r.:
https://zamkidwory.forumoteka.pl/forum/kujawsko-pomorskie-zamki/grudziadz-2/strona/10/
Może przykład Gdańska i jego zaangażowanie w promocję zabytków Grudziądza wpłynie pozytywnie na urzędników w Grudziądzu?
Na zdjęciu zapewne wątek allonge apareil, Grudziądz , ul. Kościelna 10