
Zamki, dwory obronne, mury miejskie, grodziska
Forum miłośników średniowiecznych fortyfikacji (zał. 05 Lis 2007)
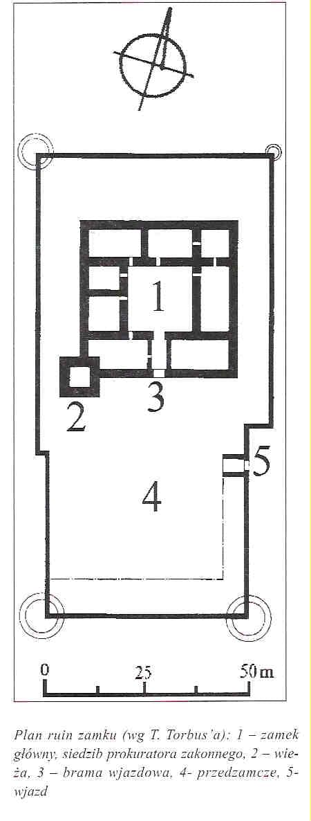
Zamek stanowił ważny ośrodek administracyjny i militarny Prus Krzyżackich. Pierwotnie drewniany - spłonął podczas najazdu litewskiego w 1370 r. Wówczas odbudowano go z kamienia i cegły. Był siedzibą prokuratora krzyżackiego, zarządzającego utworzonym tu okręgiem administracyjno-wojskowym. Pierwszego z nich - Henryka Murera wymienia dokument lokacyjny Bartnej Strony. W czasie wojen Zakonu z Polską, był on kilkakrotnie zajmowany przez wojska polskie, ostatni raz w 1520 r. Po likwidacji Prus Zakonnych i utworzeniu lennych, wobec Korony Polskiej, Prus Książęcych w 1525 r., zamek utracił znaczenie bastionu granicznego. Pozostał jednak siedzibą starostwa, a jego przebudowa w latach 1579-1581 na rezydencję myśliwską książąt pruskich, miała ogromny wpływ na intensywny wzrost gospodarczy osady podzamkowej w następnym stuleciu. W 1628 r. i 1639 r. z gościny w pałacu myśliwskim, o którym pisano, iż jest najpiękniejszy w Prusach, korzystał przebywający tu na łowach król polski Władysław IV W 1656 r. w czasie wojny polsko-szwedzkiej, szczycieński zamek po raz ostatni spełnił swe obronne przeznaczenie. Jego załoga odparła najazd Tatarów, posiłkujących wojska polskie, które w odwecie za wypowiedzenie posłuszeństwa królowi polskiemu, wkroczyły do Prus Książęcych.
W końcu XVIII w. zamek przestał być siedzibą jakiegokolwiek urzędu. Popadł w zaniedbanie, w wyniku czego częściowo został rozebrany. W 1925 r. ulokowano tu muzeum powiatowe - Heimatmuseum Kreis Ortelsburg. W latach 1945-1948 mieściło się w nim Muzeum Mazurskie, utworzone na bazie zbiorów muzeum niemieckiego. Po nieudanych próbach odbudowy, ostatecznie w latach 1990-1992, mury zamkowe zabezpieczono w postaci trwałej ruiny. Zamykają one od zachodu czworoboczny dziedziniec ratusza miejskiego, zbudowanego w miejscu starego zamku. Monumentalny ratusz miejski zbudowano w latach 1936-1937. Zaprojektowany przez architekta z Królewca - Kurta Fricka miał w ciągu następnych dziesięcioleci nie stracić nic z walorów nowoczesnej siedziby administracji miasta. Zbudowany z betonu i żelaza, na planie czworoboku, obejmującego pozostałości starego zamku, z wewnętrznym dziedzińcem i 46-metrową wieżą w południowo-wschodnim narożniku, nawiązuje do zamku obronnego. Zgodnie bowiem z oczekiwaniami ówczesnych władz miasta, architektura ratusza miała łączyć wymogi nowoczesności gmachu z historyczną tradycją miejsca, w którym go wzniesiono. (źr: http://www.muzeumszczytno.art.pl)
Budynek ratusza wzniesiony na fundamentach budynków dawnego przedzamcza







ruiny zamku właściwego















plan zamku (źródło:M.Haftka, Zamki Krzyżackie w Polsce, str.299)

zamek w 1698 roku (źródło:Leksykon...Arkady2003, str.478)

ratusz/zamek w okresie przedwojennym

Nopasaran Wysłany: 29 Sty 2013 19:36
Styczeń 2013






























