
Zamki, dwory obronne, mury miejskie, grodziska
Forum miłośników średniowiecznych fortyfikacji (zał. 05 Lis 2007)
dzielnica Gliwic
Zamek położony jest w Gliwicach przy ul. Dworskiej na lekko pochyłym terenie opadającym w kierunku doliny rzeki Kłodnicy. Budynek niszczał do lat 90-tych XX w., został zabezpieczony przez gminę (miasto Gliwice - dach i fundamenty), a obecnie prowadzony jest remont przez nowego właściciela.
Przy zamku nie prowadzono żadnych systematycznych badań. Jedynie w czasie zabezpieczania budynku prowadzono nadzór archeologiczny przy odkopywaniu fundamentów.
Pierwsza wzmianka o zamku jest dość późna i pochodzi z 1714 r (SĘKOWSKI 2033, II s. 57). Jako pośrednią wzmianką o zamku można przyjąć twierdzenie J. Chrząszcza, że Jan Welczek mieszkał w Szobiszowicach (od 1649 r.), bowiem na służbie utrzymywał woźnicę i pisarza (CHRZĄSZCZ, Beiträge… s. 686).
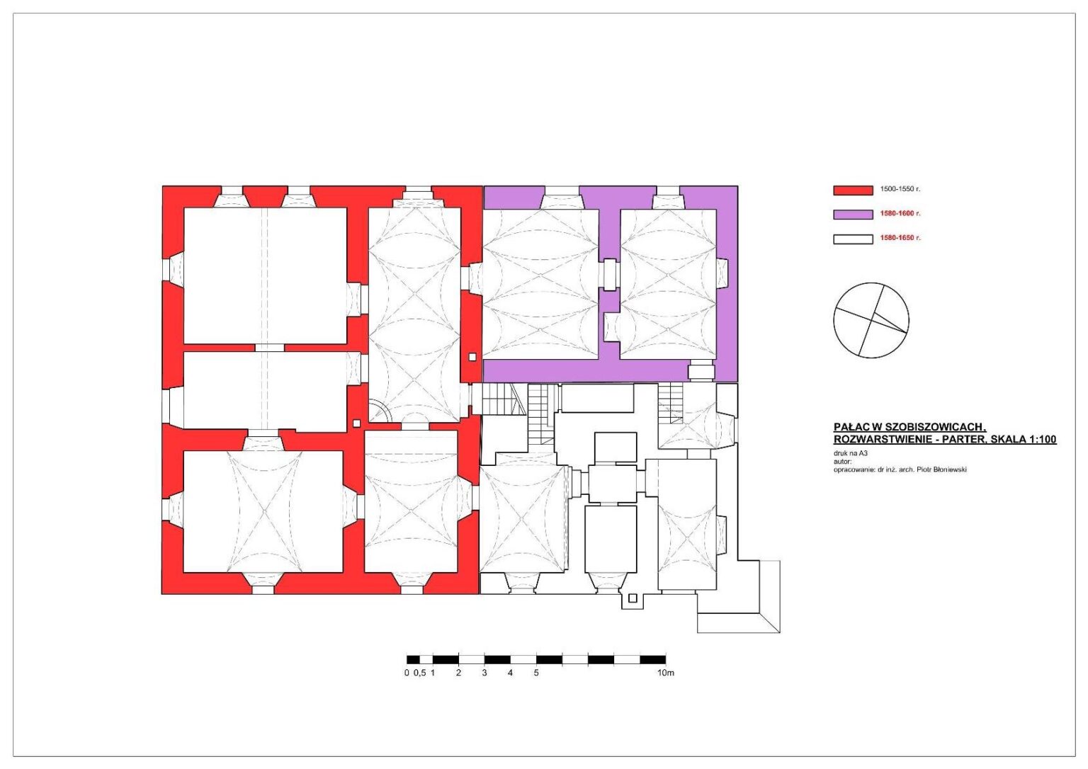
Jednakże zamek jest budowlą znacznie starszą. Budowla składa się z 3 części i ślady rozbudowy widoczne są wewnątrz (brak tynków), gdyż wewnątrz warstwy murów, zwłaszcza z cegieł, nie odpowiadają sobie poziomami.
Faza I
Budynek wzniesiono z kamienia wapiennego i cegły. Najstarszą jego częścią wydaje się być płd. fragment wraz z przelotową sienią. Był to dwór typu kamienica i z uwagi na zastosowany wątek niderlandzki murów z cegły można przyjąć jego powstanie na ok. 1580 r. Nie stwierdzono obecności murów o wątku gotyckim, natomiast w murach występuje cegła gotycka, pochodząca być może z rozbiórki starszego obiektu. Ta część jest niepodpiwniczona, sień sklepiona jest kolebkowo-krzyżowo. Pomieszczenie w narożniku płd.-wsch. nakryte jest sklepienie kolebkowo-krzyżowym ze szwem, a w pozostałej części są płaskie sufity.
Faza II
Jako kolejny element budowli powstała płn.-zach. część na którą składają się dwa sklepione kolebkowo-krzyżowo pomieszczenia. Jedynie pod tą częścią znajdują się dwie piwnice sklepione kolebkowo. Pomiędzy pomieszczeniami zachował się późnorenesansowy profilowany portal o bardzo prostym kroju. Został on przeniesiony z innego miejsca na co wskazuje jego wtórne wmurowanie.
Faza III
Jako ostatni człon powstała część płn.-wsch. z wieżą mieszczącą obecnie klatkę schodową. Wieża obecnie nie istnieje, ale została zaznaczona na rysunku F. B. Wernera przedstawiającym panoramę Gliwic. Pozostałością wieży jest duża przypora w narożniku płn.-wsch., ukształtowana w mało logiczny sposób. Stanowi ona z pewnością pozostałość latryny. W żadnym narożniku budowli nie ma wejścia do wieży. Na parterze jest to logiczne, bo przebiegał przez nią kanał, a na piętrze dojście usytuowano obok wieży i do pomieszczenia ustępowego prowadził zewnętrzny drewniany podest. Pomieszczenia na parterze tej części mają sklepienia kolebkowo-krzyżowe, natomiast piętro w całości nakrywały drewniane stropy.
Faza IV (koniec XVIII w. lub XVIII/XIX w.)
Prawdopodobnie wówczas rozebrano wieżę i cały budynek podwyższono około 0,5 m, zakładając gzyms koronujący i przykryto budowlę dachem mansardowym.
W późniejszym czasie nie dokonywano już zmian w substancji budowlanej (SIEMKO 2022).
Zamek- nizinny, regularny, siedziba rycerska typu kamienica, wzniesiony w XVI w. i rozbudowany w XVII w. Brak jakichkolwiek śladów umocnień.
SZOBISZOWICE, plan dworu z rozwarstwieniem czasu powstania murów
SZOBISZOWICE, fragment panoramy Gliwic F.B. Wernera z widokiem Szobiszowic (Petersdorf); u dołu stary kościół parafialny św. Bartłomieja, u góry zamek, naprzeciw niego folwark oznaczony czerwoną literą C

SZOBISZOWICE, widok zamku w Szobiszowicach w latach 30-tych XX wieku; elewacja frontowa (zachodnia) wg OiB

SZOBISZOWICE, rysunek zamku z początku XX wieku od północnego wschodu; sądząc po wielkości okien pełnił być może wówczas funkcję spichlerza wg OiB
SZOBISZOWICE, rysunek sklepionego wnętrza zamku z lat 30-tych XX wieku; ostre krawędzie sklepień zdają się zaznaczać szwy charakterystyczne dla późnego renesansu wg OiB
Siemko Piotr. Dwór w Szobiszowicach, Katalog Zamków i Dworów Obronnych Śląska [ https://zamki.pwr.edu.pl/dworek-szobiszowicki/ ]. Licencja: CC BY-NC 4.0 [ https://creativecommons.org/licenses/by-nc/4.0/ ]. Data dostępu: 21.06.2024.