
Zamki, dwory obronne, mury miejskie, grodziska
Forum miłośników średniowiecznych fortyfikacji (zał. 05 Lis 2007)
Obecnie jest to teren osiedla Pawłowo (ru: Павлово, Pavlovo, Pawlowo), w granicach administracyjnych miasta Bałtijska.
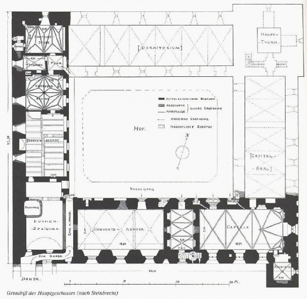
Lochstädt. Gotycki zamek został założony około 1270 r. na mierzei, nad cieśniną między Zalewem Wiślanym i morzem, dla zabezpieczenia żeglugi, jednak warunki żeglugowe szybko się pogorszyły wskutek napływu piasku. Był siedzibą zakonnego prokuratora, a następnie mistrza bursztyniarskiego (de: Bernsteinmeister). Ostatnie lata życia spędził tu w odosobnieniu po abdykacji wielki mistrz Henryk von Plauen. Około 1511 r. zamek był zrujnowany. od 1525 r. był siedzibą książęcego starostwa. Obok zamku w 1626 r. król Gustaw Adolf założył obóz wojsk szwedzkich, które pozostały praktycznie do 1636 r. W 1664 r. zamek znów był zrujnowany. Po upadku kaplicy parafialnej św. Wojciecha w Tenkitten w 1669 r., do kaplicy zamkowej przeniesiono nabożeństwa i odtąd pełniła funkcję ewangelickiej świątyni parafialnej. W latach 1701-1702 została rozebrana wieża zamkowa i dwa skrzydła, cegły przeznaczono na rozbudowę twierdzy w Piławie. Od tego czasu pozostało tylko skrzydło zachodnie i południowe zamku, poddane gruntownej konserwacji w 1937 r. Znajdowały się tam cenne przykłady gotyckiej kamiennej plastyki architektonicznej. Podczas walk w kwietniu - maju 1945 r. zabudowania uległy zniszczeniu do fundamentów. Z zasypanych dwukondygnacyjnych piwnic skrzydła południowego po wojnie wydobyto szereg zabezpieczonych dokumentów, m, in. dzieła Krystiana Donelaitisa. Także tutaj bezskutecznie poszukiwano zaginionej Bursztynowej Komnaty (1989). Zamek składał się pierwotnie ze skrzydeł tworzących czworobok z wewnętrznym dziedzińcem i z wieżą w narożniku północno-wschodnim oraz z położonego na wschód przedzamcza. W skrzydle południowym na piętrze znajdował się refektarz i kaplica ze sklepieniem krzyżowym, tworzącym w przęśle wschodnim iluzję wielobocznego zamknięcia. Na piętrze skrzydła zachodniego znajdowały się trzy komnaty prokuratora. W tych pomieszczeniach odkryto malowidła ścienne z końca XIV w., uznane za najwspanialszy przykład dekoracji krzyżackiego wnętrza, z wyobrażeniami religijnymi i świeckimi, służącymi gloryfikacji Zakonu.
Obecnie w stanie ruiny.
plany zamku


rekonstrukcja zamku


na rycinie wg Steinbrechta

na google maps

na przedwojennych zdjęciach




zachowane współcześnie relikty

autor zdjęcia: Renata Rimsha