
Zamki, dwory obronne, mury miejskie, grodziska
Forum miłośników średniowiecznych fortyfikacji (zał. 05 Lis 2007)
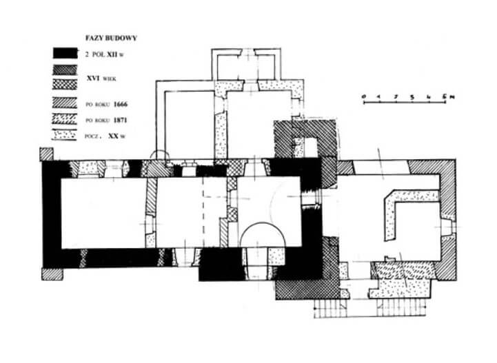
Przypuszczalnie pierwsza budowla obronna w tym miejscu powstała już w XI-XII w. Średniowieczny zamek Toporczyków stał na obecnym wzgórzu kościelnym. Wobec braku rozpoznania trudno okreslić dokładny czas powstania zamku. Wg. XVIII wiecznych przekazów Tęczyńscy częśc zamku zamku przeznaczyli na kościół parafialny. Pozostałości dolnych kondygnacji zamku tkwią w murach obecnej plebanii. Był to jednotraktowy dwupiętrowy budynek na planie wydłużonego prostokątu.





kalos70 Wysłany: 24 Lip 2019 20:34
Niezwykłe odkrycie w Morawicy. To rezydencja sprzed niemal 1000 lat
18 lipca 2019, 22:04 Małgorzata Mrowiec, https://dziennikpolski24.pl
Na wzgórzu w Morawicy, gdzie stoi kościół św. Bartłomieja i plebania, niegdyś istniał średniowieczny zamek. Mówią o nim przekazy historyczne, ale dotąd nie został odnaleziony. Teraz dokonano przełomowego odkrycia: okazuje się, że w murach plebanii wciąż „schowana” była romańska rezydencja rycerskiego rodu. Tylko nikt jej wcześniej nie szukał w tym budynku...
Tropienie zagadki tego miejsca zaczęło się od kamiennego łuku, z wapienia, który wyłonił się spod odpadającego tynku na elewacji. Przy okazji prowadzonych na wzgórzu kościelnym prac archeologicznych i remontowych wypatrzyła go badaczka architektury Maria Bicz-Suknarowska.
- Ten łuk portalu, półkolisty i złożony z regularnych elementów, nasunął mi myśl, że to tu może być zaginiony romański obiekt - pokazuje teraz na miejscu Maria Bicz-Suknarowska. Podobne romańskie portale są charakterystyczne np. dla krakowskiego kościoła św. Wojciecha czy klasztoru ss. Norbertanek.
Efekt dalszych dociekań badaczki to odsłonięte pozostałości budynku, który - według wstępnego datowania - mógł powstać między końcem XI a drugą połową XII wieku. Są to mury tzw. palatium, siedziby średniowiecznych właścicieli Morawicy, protoplastów licznych rodów pieczętujących się herbem Topór.
Wywodzili się oni od palatyna Sieciecha. Nie ma pewności, czy to on wzniósł na wzgórzu gniazdo rodu Toporów, z którego pochodził, czy jego następcy z tego potężnego i najstarszego rodu rycerskiego w Polsce.
- Sieciech, pierwszy notowany właściciel Morawicy, był fundatorem kościoła św. Andrzeja w Krakowie, który ma nieco podobne wątki kamienne do tych w Morawicy. Mógł tu mieć swoje prowincjonalne palatium, które wobec tego pochodziłoby z przełomu XI i XII wieku - badaczka architektury podkreśla, że to na razie śmiała hipoteza, jaką stawia.
Co jest wyjątkową gratką, z liczącego ok. 1000 lat zabytku zachowały się nie tylko np. fundamenty, lecz całe mury sięgające niegdyś dachu! Dziś - po licznych przebudowach obiektu - są wpisane w bryłę plebanii, stanowią część jej zewnętrznych ścian.
Fakt, że znaleziona została budowla romańska, potwierdzili teraz wawelscy archeolodzy i specjaliści zajmujący się zabudową z tego okresu: prof. Zbigniew Pianowski i dr Janusz Firlet.
- Nie podejrzewaliśmy w Krakowie ani w najbliższym otoczeniu Krakowa istnienia dobrze zachowanego domu romańskiego. To ogromna niespodzianka i odkrycie bez precedensu. A stan zachowania jest po prostu rewelacyjny - komentuje znalezisko z Morawicy dr Janusz Firlet. - To odkrycie poprawi stan rozpoznania wczesnego budownictwa, o którym mało wiemy z powodu nikłego zachowania obiektów.
Jak dokładnie wyglądało palatium w Morawicy, będzie można ustalić dzięki dalszym badaniom, jak też porównaniom z analogicznymi obiektami u naszych sąsiadów - romańskimi domami w Pradze. W Krakowie nie ma domu klasycznie romańskiego. Bardzo możliwe, że to z Czech rodzina władająca dobrami w Morawicy zaczerpnęła wzorce i sprowadziła budowniczych.
Co do tej pory wiadomo o obiekcie z Morawicy? Wzniesiony był z wapienia pochodzącego z okolic Krakowa. Zbudowano go na rzucie wydłużonego prostokąta o wymiarach 6,8 na 17 metrów (a właściwie 12 na 30 łokci, bo taką miarę stosowano). Mury miały ponad metr grubości.
- Palatium jest rodzajem wczesnej kamienicy mieszkalnej. Nie był to jeszcze zamek, ale już ten obiekt musiał mieć zabezpieczenia obronne: może wał, może palisadę dookoła. Poza tym jako budowla obronna z trzech stron był pozbawiony otworów - drzwi i okien, miał tylko wejście i okna od strony dziedzińca - opisuje Maria Bicz-Suknarowska.
Na dziedzińcu gospodarczym zapewne była w przeszłości kuchnia (znajdowały się one w tamtych czasach poza budynkiem mieszkalnym), stajnia, spichlerz, jak też studnia, która nadal istnieje.
Znaleziony łuk portalu jest pozostałością po wejściu do budynku. Według badaczki tuż obok drzwi istniało okno - jedno z trzech, które wpuszczały światło do pomieszczeń na parterze. Również pierwsze piętro miało rząd okien, być może przedzielonych ozdobnymi kamiennymi kolumienkami. Palatium było piętrowe. Dach mógł być kryty gontem lub dachówkami z łupka. Do jednej ze ścian rezydencji najprawdopodobniej była dostawiona kaplica.
Budynek był niepodpiwniczony. Biegnie natomiast wzdłuż niego i kończy się ślepo korytarz, który wydrążono w lessie przykrywającym skałę wzgórza. Pochodzi jednak z późniejszego okresu.
Rezydencja najprawdopodobniej rozbudowywała się w cały kompleks zamkowy w XIV-XVI wieku. Wiadomo m.in., że zamek w Morawicy gościł w 1518 r. przyszłą królową Bonę Sforzę w drodze na Wawel. Natomiast w 1666 roku jego część została zamieniona na plebanię - i tym pozostała do dziś.Proboszcz parafii św. Bartłomieja chce wyremontować plebanię i na jednej z kondygnacji urządzić muzeum.
- Możemy w nim pokazać XV-wieczne ornaty, kielichy, dawne księgi. Mamy też możliwość uzyskania z Muzeum Archeologicznego w Krakowie części znalezisk z wykopalisk z Morawicy - wymienia ks. Władysław Palmowski.
Turyści, którzy będą tu przyjeżdżali, zobaczą też wyeksponowane mury dawnego gniazda rodu Toporów. Cała inwestycja jest do wykonania w dwa lata, jednak trzeba na nią znaleźć - według szacunków proboszcza - 8 mln zł.
Maria Bicz-Suknarowska przy łuku romańskiego portalu w Morawicy

carrollus Wysłany: 06 Maj 2020 21:57
Stan na 2019 po zdjęciu tynków.



Obecnie w tym miejscu jest również tablica, na której są 2 zdjęcia domyślam się elementów romańskich, bo nic nie jest opisane (mur w piwnicach i okienko prostokątne) garść ogólnych informacji o obiekcie i informacja o tym, że ważni dygnitarze tu po odkryciu byli, się zachwycili, potem pojechali, zachwyt pozostał, a pieniądze się skończyły i nr konta na datki.
Portal - ponoć że romański

rekonstrukcja palatium w Morawicy od płd-zach i płn-wsch wg Z.Pianowskiego i M.Bicz-Suknarowskiej, wykonał M.Orkisz

plan parteru budynku z rozwarstwieniem chronologicznym wg M.Bicz-Suknarowskiej

źr: https://medievalheritage.eu/pl/strona-glowna/zabytki/polska/morawica-palatium-zamek/