
Zamki, dwory obronne, mury miejskie, grodziska
Forum miłośników średniowiecznych fortyfikacji (zał. 05 Lis 2007)
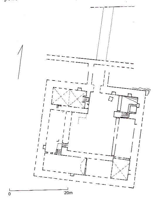
Relikty zamku komturskiego z XIV wieku. Pierwotne zalożenie z XIII wieku zostalo zniszczone w 1269 roku. W pierwszej połowie XIV wieku odbudowano go już jako zamek murowany, który zawierał: przedzamcze z młynem, piekarnię, browar, wozownię oraz łaźnię. Znajdowal sie on jednak w innym miejscu niz pierwotne zalożenie. Zaczęto go wznosić ok 1327 roku i był budowany z przerwami do lat 80-tych XIV wieku. Na mocy postanowień pokoju mełneńskiego zamek został rozebrany przez krzyżaków w latach 1423-1424.






plan zamku wg. R.Domagały i R.Franczuk, 1992

carrollus Wysłany: 13 Wrz 2014 6:42
Szału nie ma. Trochę fundamentów w prywatnych chaszczach. Teren co prawda niedaleko posesji, ale nieogrodzony, więc nie ma problemów z wejściem. (Fot. marzec 2014)
Widok ogólny

Murki








giekaa Wysłany: 01 Maj 2017 22:25
Marzec' 2013







