
Zamki, dwory obronne, mury miejskie, grodziska
Forum miłośników średniowiecznych fortyfikacji (zał. 05 Lis 2007)
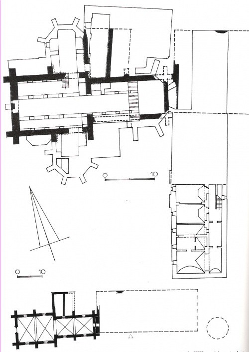
Mało znany ogółowi dwór obronny we Wrocławiu znajdował się w centralnej części lewobrzeżnego miasta. Była to druga wrocławska rezydencja władców, która śmiało mogłaby być określana jako kolejny zamek. fakt jego istnienia był znany od dawna jednak bez określenia lokalizacji i ukształtowania architektonicznego. Wszyscy badacze wiązali ten obiekt z miejscem późniejszego zamku lewobrzeżnego i na jego terenie usiłowali znaleźć relikty budowli XIII-wiecznej. Sugerowano jego lokalizację przy obecnym placu Nankera, pisząc o istnieniu podwójnych murów obronnych z wieżami otoczonych fosą. Nie zwrócono jednak uwagi na dokument fundacyjny szpitala św. Elżbiety wydany dla zakony Szpitalników. Ten dokument wystawiony przez księżną Annę i Henryka III zawiera opis darowizn który w tłumaczeniu z łacińskiego brzmi: "Dobra zaś, które wymienionemu szpitalowi i personelowi darowujemy i na których tenże szpital nasz jest założony są następujące: Curia w której znajduje się sam szpital i kościół św. Macieja na niej zbudowany. podobnież część curii matki naszej aż do zrujnowanej wieży ceglanej - po jej smierci pozostałą w istocie część wspomnianej curii darowujemy klasztorowi i konwentowi Braci Mniejszych we Wrocławiu". W innym zaś dokumencie z 1268 roku określa położenie dworu Anny: curia matris nostre que iuncta est claustro sancte clare. Dokument z 1253 roku a zwłaszcza wymieniona w nim wieża okazał się w przekonaniu autora główną wskazówka do poszukiwania dworu księżnej Anny. Istnienie zwartego i wyraźnie wyodrębnionego zespołu średniowiecznej architektury kościoła i przyległego budynku plebanii w połączeniu z odkryciem gotyckiego szczytu plebanii nasunęły przypuszczenia o pierwotnie rezydencjonalnej funkcji tego zespołu. Umocniła je interpretacja wzmianki o zrujnowanej wieży ceglanej w dokumencie z 1253 roku. Wskazywało to bowiem na istnienie 3 głównych składników XII-wiecznych rezydencji książęcych: dworu, kaplicy i wieży otoczonych obwodem mniej lub bardziej warownego założenia. Pozostałości XIII-wiecznego dworu mogły się zachować w pobliżu i w dolnej partii obecnego budynku plebanii pod nawarstwieniem przebudowy z XIV wieku widocznej we wspomnianym gotyckim szczycie północnym. Mógł on się wznosić na północnej nie podpiwniczonej części budynku plebanii i sięgał dalej na wschód aż do wieży. Ówczesną kaplicą był wtedy kościół św. Macieja, który pełnił funkcję dworskiego oratorium, dostępnego od strony budowli mieszkalnej. trzeci element rezydencji - wieża, miejsce schronienia i główny obiekt obronny to wspomniana już "zrujnowana wieża ceglana" która miała się wznosić na linii granicznej dzielącej posiadłość księżnej Anny na część przeznaczoną dla Szpitalników i Franciszkanów. szczególnie wazne jest tu określenie "zrujnowana" wskazujące na jej starszą metrykę i pozwalające identyfikację całości rezydencji dworu Anny z dworem Henryka I Brodatego. Księżna bowiem zajęta fundacjami klasztornymi rezydowała we dworze znajdującym się w ich sąsiedztwie. Z pewnością nie ona zbudowała wspomnianą wieżę, a jedynie odbudowała spalony w 1241 roku przez Tatarów dwór rezygnując już z odbudowy podobnie zniszczonej wieży tym bardziej, że trwała wtedy budowa murów miejskich. Wieża była więc prawdopodobnie zbudowana przez Henryka I Brodatego jako część jego dworu na lewym brzegu rzeki i jako wolno stojąca lub przyległa tylko do do budynku usytuowana była na dziedzińcu lub w linii obwałowania stanowiąc trzon wieżowego systemu obrony. Mniejsza skala rezydencji określanej mianem dworu (curia) i słabsze urządzenia obronne skłoniły zapewne do jej opuszczenia w czasie najazdu Tatarów w 1241 roku co spowodowało zniszczenie przez pożar. Z tego wynika, że dwór Henryka Brodatego i dwór księżnej Anny różnie dotąd określane i lokalizowane były tym samym obiektem. W podziemiu prezbiterium kościoła są zachowane resztki zburzonych ścian starszego założenia. Oględziny ścian zewnętrznych w podziemiach budynku duszpasterstwa wykazały istnienie wątku wendyjskiego w licu ich ceglanej konstrukcji potwierdzając tym XIII-wieczną metrykę budowli. O wieży wiadomo, ze powinna znajdować się po wschodniej stronie obecnej uliczki dzielącej dwa klasztory, nie dalej niż do kościoła św. Klary. Znajdowała się po po drugiej wschodniej stronie dziedzińca dworskiego przylegając do wschodniego krańca wydłużonego budynku mieszkalnego. Fundamenty wieży powinny się znajdować na wschód od obecnego gmachu duszpasterstwa na odcinku do zachodniej ściany kościoła Klarysek. Prawdopodobnie też Klaryski objęły cały teren kurii Anny. Szpitalnicy otrzymali natomiast dwór przyległy do kościoła św. Macieja, jak wskazują fakty, to określenie "curia" może oznaczać zarówno całość terenu jak i tylko sam budynek. Miejsce w którym wznosił się dwór z wieżą i oratorium tworzyło największe naturalne wzniesienie na omawianym terenie. Watek wendyjski (czyli pochodzący z dworu) można znaleźć w podziemiach kościoła, na zewnątrz kościoła przy zakończeniu jego wschodniej ściany od strony północnej, w budynku Maciejówki gdzie podłużne ściany pomieszczenia podziemnego są wzniesione na fundamentach z wątkiem wendyjskim oraz w podziemnej partii północnej strony budynku, oficynie (obecnie garaż) o grubych na ponad 1,3m murach, przyległej do obecnego gmachu duszpaterstwa.
Lokalizacja dworu (1), nr 3 jest oznaczony zamek Cesarski

plan kościoła św. Macieja z przyległą zabudową i oznaczeniem murów XIII-wiecznych wg. E.Małachowicza

kościół św. Macieja, plan piwnic z oznaczeniem murów z I połowy XIII wieku i konstrukcja pierwotnego planu z prawdopodobnym zarysem dworu wg. E.Małachowicza

kościół św. Michała w okresie międzywojennym kryjący w sobie relikty dworu

kościół wzniesiony w miejscu dworu, 2019


Maciejówka
